Bútorozott lakás / téglalakás

  • Kód: #62009
  • Hely: Budapest
  • Típus: lakás
  • Ár: 84 990 000 HUF
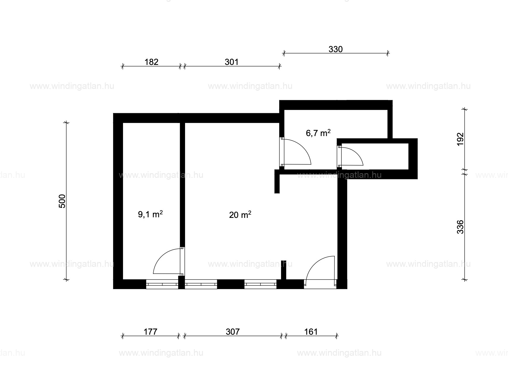
  • Méret: 36 m2
  • Szoba: 1 + 1 fél szoba
  • Állapot: extra állapotú
  • Komfort: összkomfortos
  • Fűtés: padlófűtés
  • Fürdő és wc: egy helyiségben
  • Lift: -
  • Erkély: -
  • Tájolás: -
  • Kilátás: -
  • Parkolás: utcán ingyenes
  • Belmagasság: 3m-nél magasabb
  • Épület szint: 3
  • Emelet: 2
  • Légkondicionáló: Van
  • Panelprogram: -

Az ingatlanról

/62009/

Stílusos luxus a belváros szívében – Andrássy úti ékszerdoboz eladó!
Eladásra kínálunk Budapest egyik legpatinásabb helyszínén, a VI. kerületi Andrássy úton, egy minden részletében prémium szinten felújított, különleges hangulatú, 1,5 szobás, 36 m²-es téglalakást. A gondosan megtervezett belső falbontásoknak köszönhetően a térérzet jóval tágasabb a hivatalos négyzetméternél – valóban érezhető a szabadság és a légies nyitottság.

A lakás a második emeleten található, belső udvarra néz, így csendes és zavartalan életteret biztosít, miközben a város lüktetése csupán egy karnyújtásnyira van. A társasházban működő lift segíti a közlekedést, és már elindult a korszerűsítés is – a modern lift kiépítésének költsége már rendelkezésre áll.

Kiváló elhelyezkedés:
A kisföldalatti metró (M1) megállója mindössze 30 méterre, az Oktogon pedig alig 5 perc sétára található. A ház aljában gyógyszertár és dohánybolt, a szomszéd épületben élelmiszerbolt is működik – minden kéznél van.

Teljeskörű, modern felújítás kevesebb mint 1 éve:

Fűtés: energiatakarékos, mennyezetbe épített infrafűtés, termosztáttal vezérelve
Fürdőszoba: padlófűtés + elektromos törölközőszárító
Hűtés: hűtő-fűtő klímaberendezés
Biztonság: több ponton záródó biztonsági ajtó + kamerarendszer telefonos hozzáféréssel
Rendkívül alacsony rezsiköltség, közös költség: 9.648 Ft
Gépesített konyha és teljes berendezés:
Beépített hűtő, 4 zónás főzőlap, mosogatógép – a teljes bútorzat és felszerelés benne van az árban. Csak költözni kell!

Ideális választás:
Fiatal pároknak, egyedülállóknak vagy befektetőknek – rövid és hosszú távú kiadásra egyaránt tökéletes.

Ár bútorzattal és minden felszereléssel együtt: 84.990.000 Ft


.


Vélemények a munkatársról

Kapcsolat felvétel

Wind ingatlan

Izik Barbara

Értékesítő

windingatlan5@gmail.com

+36-70-428-87-74

További ingatlanok

Részletek

Eladó

  • 220 m2
  • 5 + 2 fél szoba
  • 155 000 000 HUF

Alsórákos

Budapest XIV.

Részletek

Eladó

  • 40 m2
  • 1
  • 24 500 000 HUF
Részletek

Eladó

  • 59 m2
  • 2
  • 43 000 000 HUF

Eladó házrész

Budapest XX.

Részletek

Eladó

  • 187 m2
  • 4 + 2 fél szoba
  • 76 000 000 HUF

Eladó családi ház

Budapest XXIII.

Részletek

Eladó

  • 91 m2
  • 3
  • 125 000 000 HUF